Hareketli Raflarıyla Dikkat Çeken Bir Ayakkabı Mağazası: Skechers Türkiye

0 4.831
Zemberek Tasarım tarafından tasarlanan Skechers Türkiye mağazası, düzenli raflara sahip olmak yerine, her bir ahşap parçanın aşağıya çevrilebileceği bir sistem tasarladı.

Mevcut alanın akılcı olmayan planı, alanın kullanım örneğine uygun olarak oluşturulmasını arzulayan “ana ses” duygusu için uygun değildi.

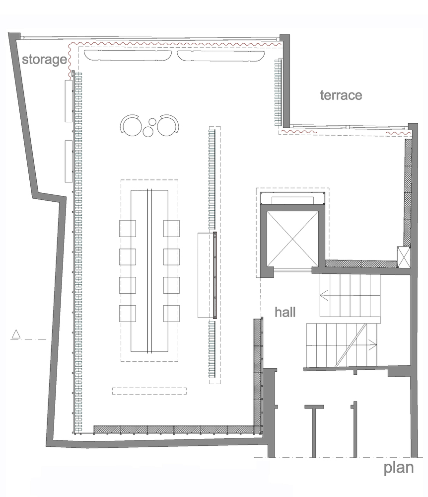
Boşluk, seperatör duvarı ile toplantı masasını merkezde tutan ana bir hacime bölünmüş ve duvarın ardında bıraktığı bir sirkülasyon ekseni ve bu eksene entegre edilmiş daha küçük bir sergi alanı tasarlanmıştır.

Etkin, konforlu ve kentsel bir yaşam tarzına hitap eden markalı ürünlerin gündelik kategorisi, günlük yaşam aktiviteleri için bir platform oluşturan tanıdık bileşenlerin toplanması için bir referans sundu. Bu yaklaşım çerçevesinde, uzmanlaşmış ürün grupları için kullanılan sergi ünitelerinin materyalleri, tasarımları ve hareketli mobilya seçimleri hakkındaki kararlar şekillendi.

Her mevsim sınıflandırma ve sayıma göre değişen markanın rahat katagorisinde farklı alt ürün grupları vardı. Satış temsilcilerinin, ürünlerini kolay ve esnek bir şekilde sınıflandırarak ve farklı müşterilere göre değişkenlik gösterecek şekilde düzenleyerek sergileme stillerini organize etme imkânı veren modüler ve dinamik bir raf sistemi tasarlanmıştır.

Bu sistem, herhangi bir ürün olmadığında veya tam dolu olduğunda bile, ana hacimde geniş tarafta bir desen oluşturur. Sistem, kapalı ve açık kalabilen masif ahşap parçaların, iç duvarın önüne doğru açabilecek basit bir mekanizma ile monte edilmesiyle oluşturulmuştur.

Seçilen / seçilmemiş ürünleri ziyaretçiler tarafından ayırmak amacıyla da kullanılabilen bu sistem, kullanıcı-mekan ilişkisini fırsat sağlama noktasından etkileşimli kullanıma kadar güçlendirmektedir. Bu raf sistemi, ana hacmi çevreleyen ayırıcı duvar hattı üzerinde yarı geçirgen bir durum yaratan bir varyasyonla tekrarlanır. Alan, ahşap parçaların kapalı ve açık konumda yoğunluk oranında bu varyasyonla şeffaflık kazandı.

Yorum Bırakın

E-posta hesabınız yayımlanmayacak.