Bilgi Kozyatağı İç Mekan Projesi
Yerleşkenin yer aldığı bölge çoğunlukla ofis yapılarından oluşuyor.
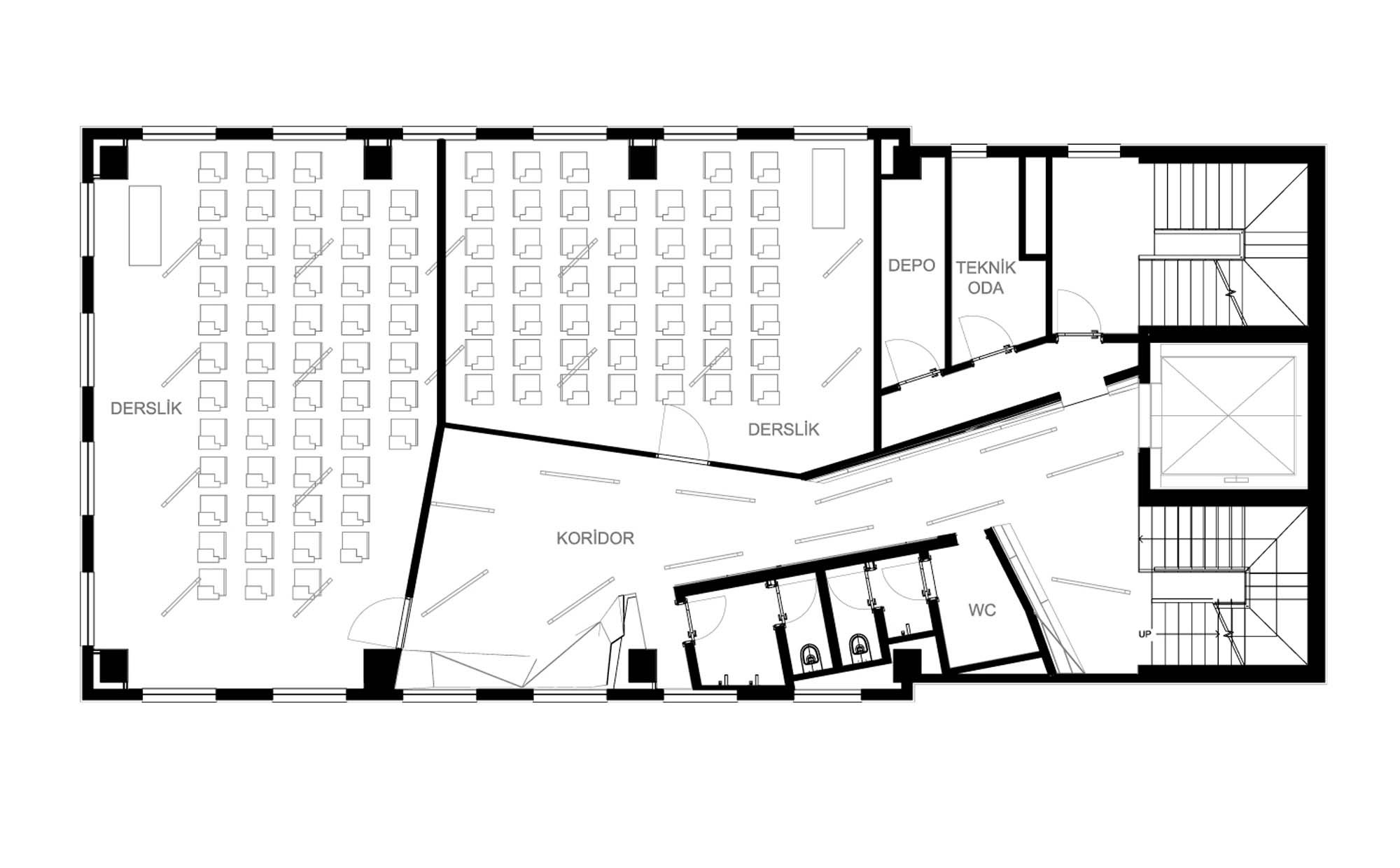
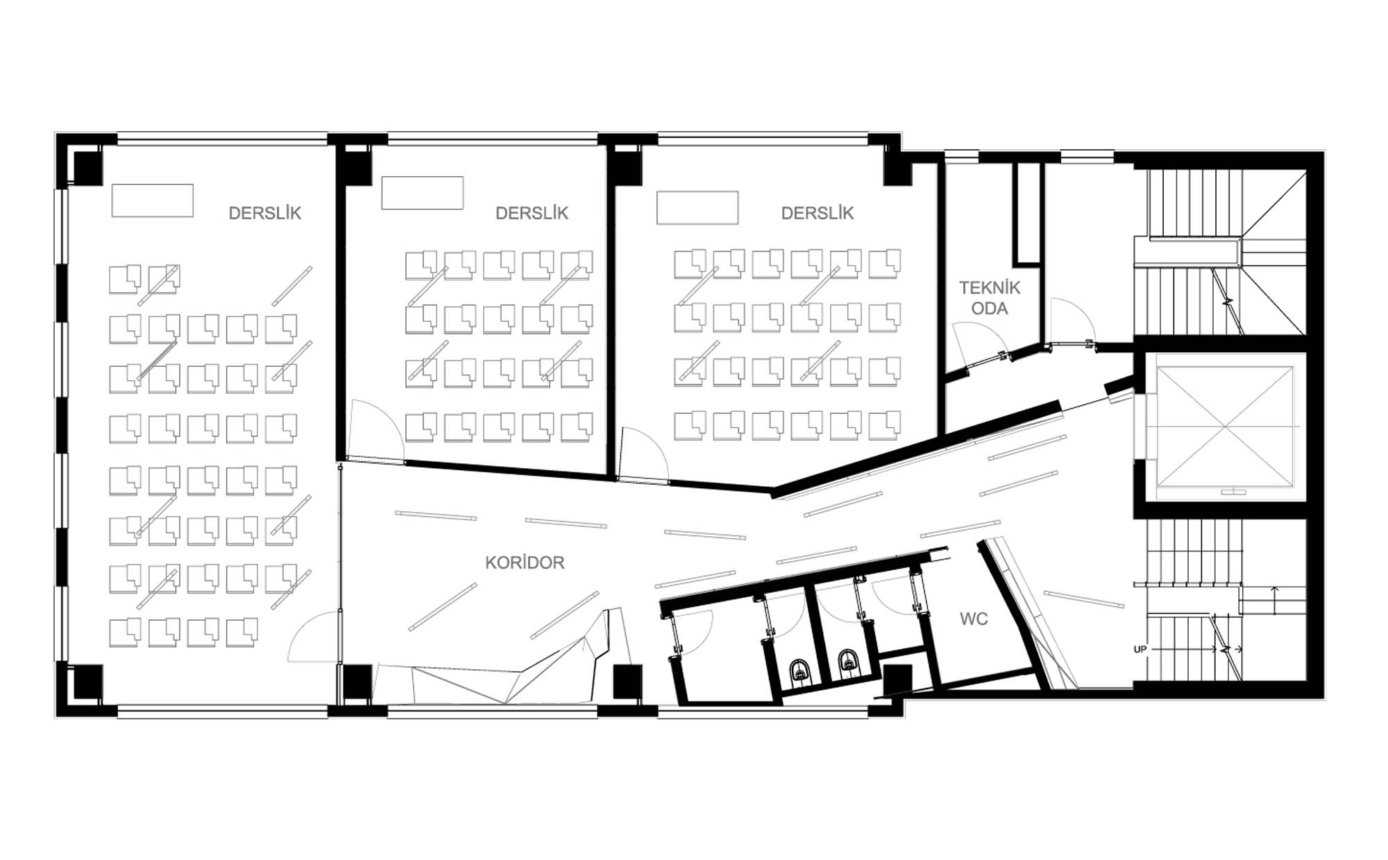
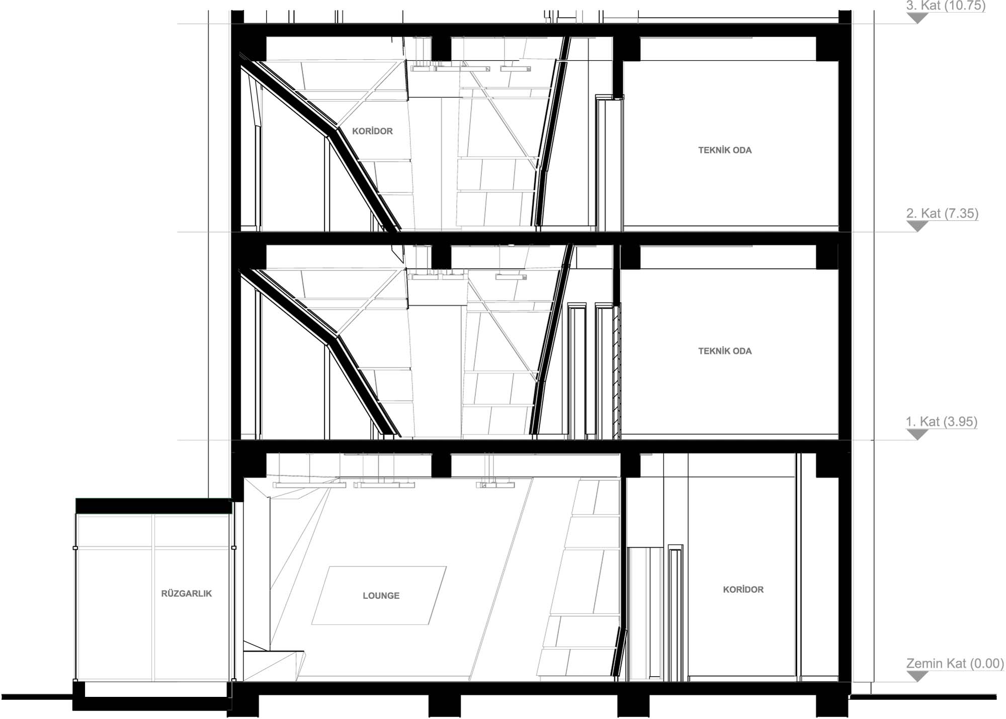
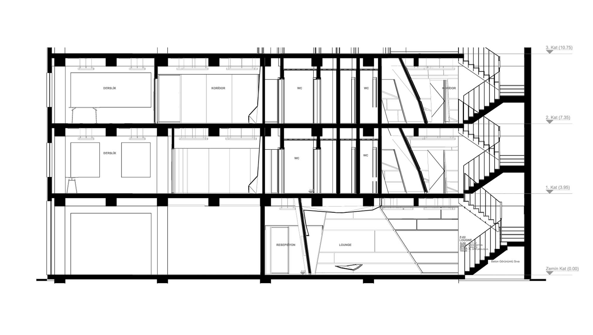
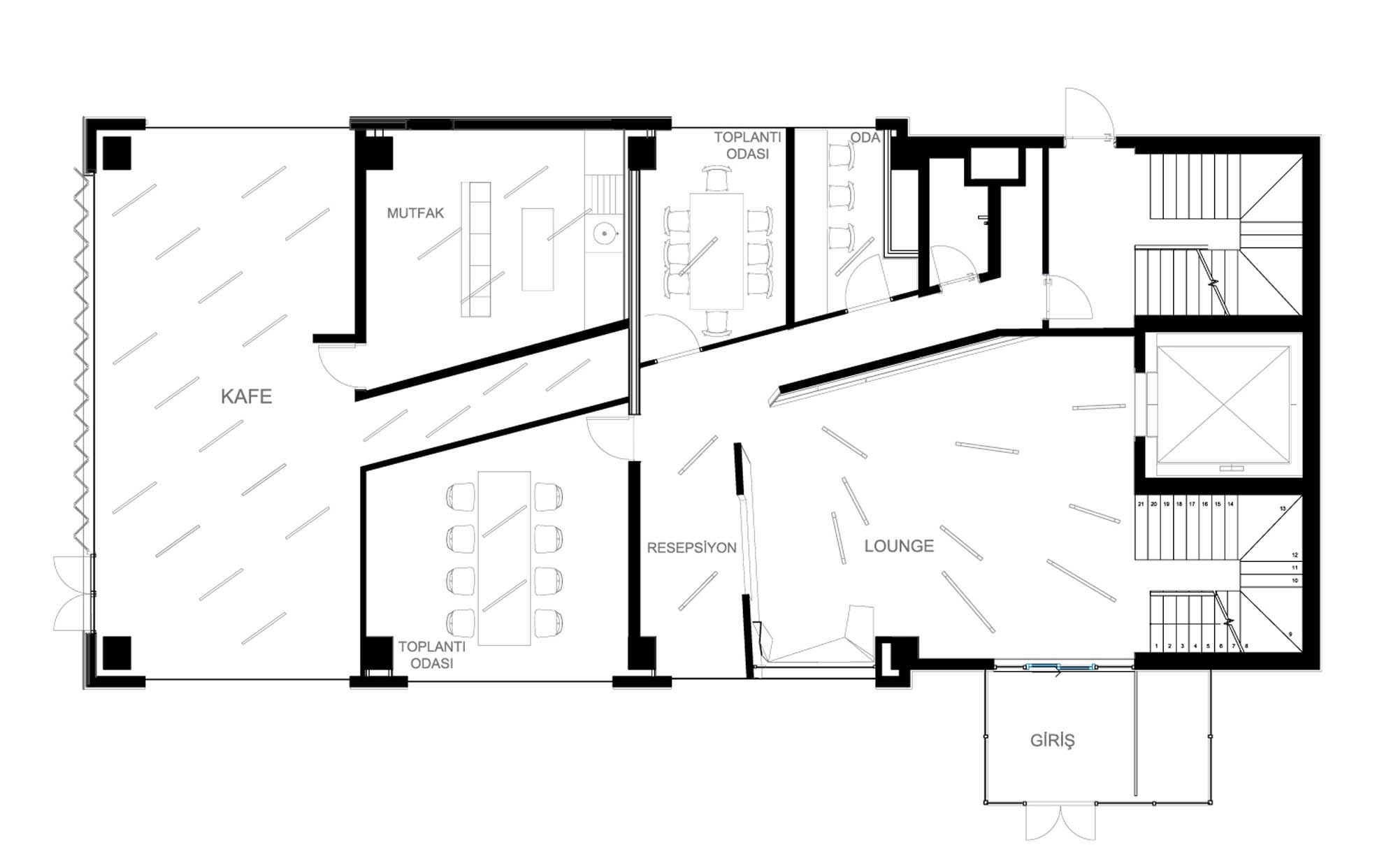
Mevcut yapı da bu tek tip, betonarme gridal strüktürle biçimlendirilmiş, konvansiyonel, plaza yapılarından bir tanesidir. Yapı kabuğu ve plan şemasıyla tipik bir ofis olan yapı, strüktürünün geniş açıklıklar geçen niteliği sayesinde, iç mekanda esnek müdahalelere olanak tanıyor. Ancak çok katlı olması, üniversite yerleşkesi programının gerektirdiği süreklilik ve yataylık sebebiyle karşıtlık oluşturuyor. Bu bağlamda önerilen proje ise, üniversite yapısının tek düzlemdeki akışını katlar arasında kesintisiz olarak yeniden oluşturma düşüncesi üzerinde temellendi. Bunun yanı sıra, üst ölçekten başlayıp yapı ölçeğine gelen bu tek tip, sınırlandırılmış ve ön tanımlı hali kırmak, deyim yerindeyse ‘kutunun dışında düşünmek’ hedeflendi.
Proje kapsamında koridolar yapının artık alanları olarak değil, okulun en fazla kullanılan, ortak alanları olarak ele alındı. Ayırıcı duvarların çizgisel ifadesiyle ise kesintisiz, tek bir kat sürekliliğini oluşturmak hedeflendi.
Mekansal organizasyon bağlamında ortak kullanım hacimlerini genişletebilmek ve yapının içindeki sirkülasyonun kuvvetli bir bütünselik içinde akışının sağlanabilmesi adına, yüzeylerin yerçekimiyle olan ilişkisi yeniden ele alındı. Ortogonal ızgara ile kontrast oluşturacak şekilde biçimlenen bu yüzeylerle yaratılan dinamik perspektifler ve mimari gramerle, kullanıcı algısının yapıya girildiği andan itibaren dönüştürülmesi ana unsurlardan biri oldu.
Mevcut gridal strüktürün tanımladığı katı sınırları aşmanın yolunu arayan projede; aslında her biri sonlu elemanlar olan nesnelerin, ayrılmaz bir bütün oluşturması yoluyla çerçevenin ötesine geçilmesi hedeflendi. Bunu sağlamak amacıyla, çizgisel elemanlar olarak soyutlanan aydınlatma elemanları, fizik ve matematikte ‘alan koşulları (field conditions)’ olarak tanımlanan sistemi meydana getiren niteliktedir.












