Konsept Olarak Düalizm / Bir Vietnam Restorantı Tasarımı
Proje Künyesi
Mimar: Mathew Van Kooyİşveren: Phamily KitchenProje Alanı: Collingwood, AvustralyaFotoğraflar: Daniel Aulsebrook
Projenin mimarı anlatıyor. Tıpki yaz günü kumsala vuran ilk dalga gibi, Phamily Kitchen’ da yenilikçi, ferah ve cesur bir konsept yaratmak amaçlanırken aynı zamanda mekanın sahip olduğu eski-yeni çatışması düalist bir tutumla tasarımlara işlenmeye çalışıldı.
Phamily Kitchen’nın sahip olduğu geleneksel Vietnam tarzına en az oranda müdahale edilerek, bu geneksel bakış modern mobilyalarla harmanlandı. Bu şekilde mekanın içinde kaldığı ikililik saklanmak yerine daha çok gün yüzüne çıkarıldı. İç mekan kurgusu yapılırken, geleneksel Vietnam yemeklerinde oldukça sık rastlanan mavi renginden ilham alındı ve mekanı saran, dışarıdan da görülebilen bir kabuk tasarlandı.
Canlı, doygun mavi ile zemin, duvarlar, sandalye, masa, mutfak eşyaları ve diğer eşyaları bir deprem dalgası gibi kaplanırken; mekanın kendine özgü duvarlarına, pencerelerine hiç dokunulmadı.
Mekanın yeni ve eski olma durumu arasındaki düalizm, özellikle çıplak bırakılan duvarlar ve mavi pleksiden oluşan kabukla daha çok vurgulandı.
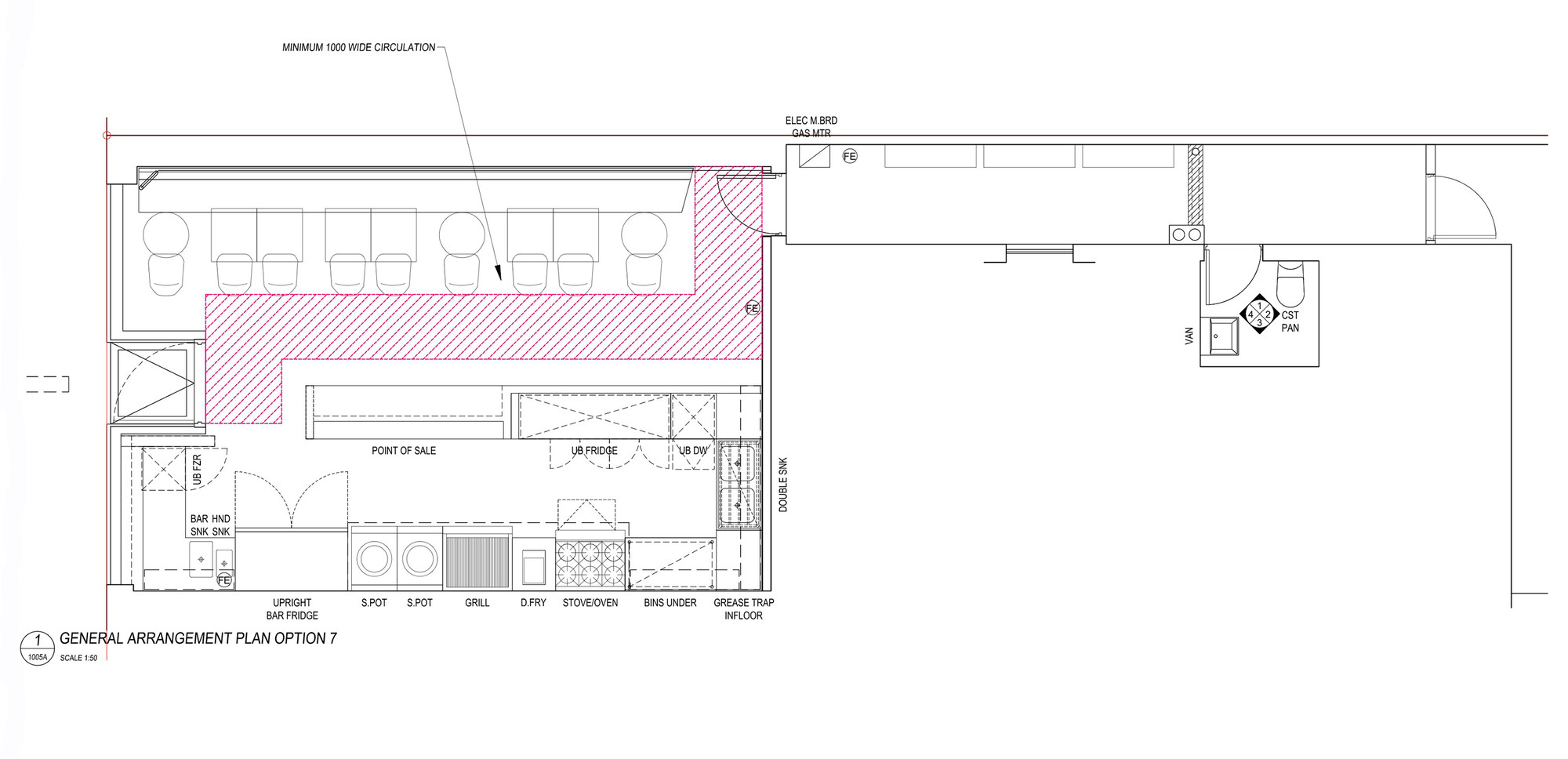
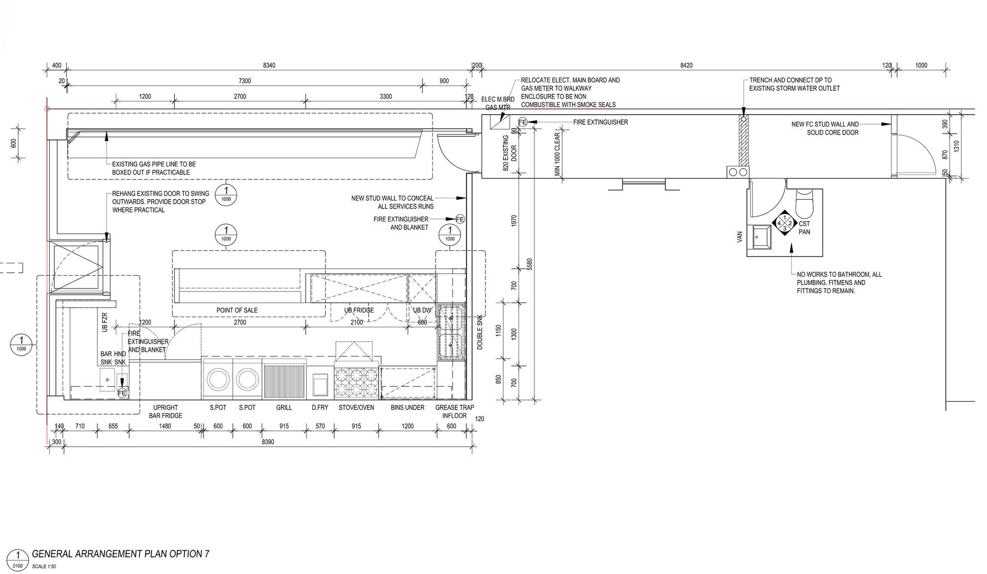
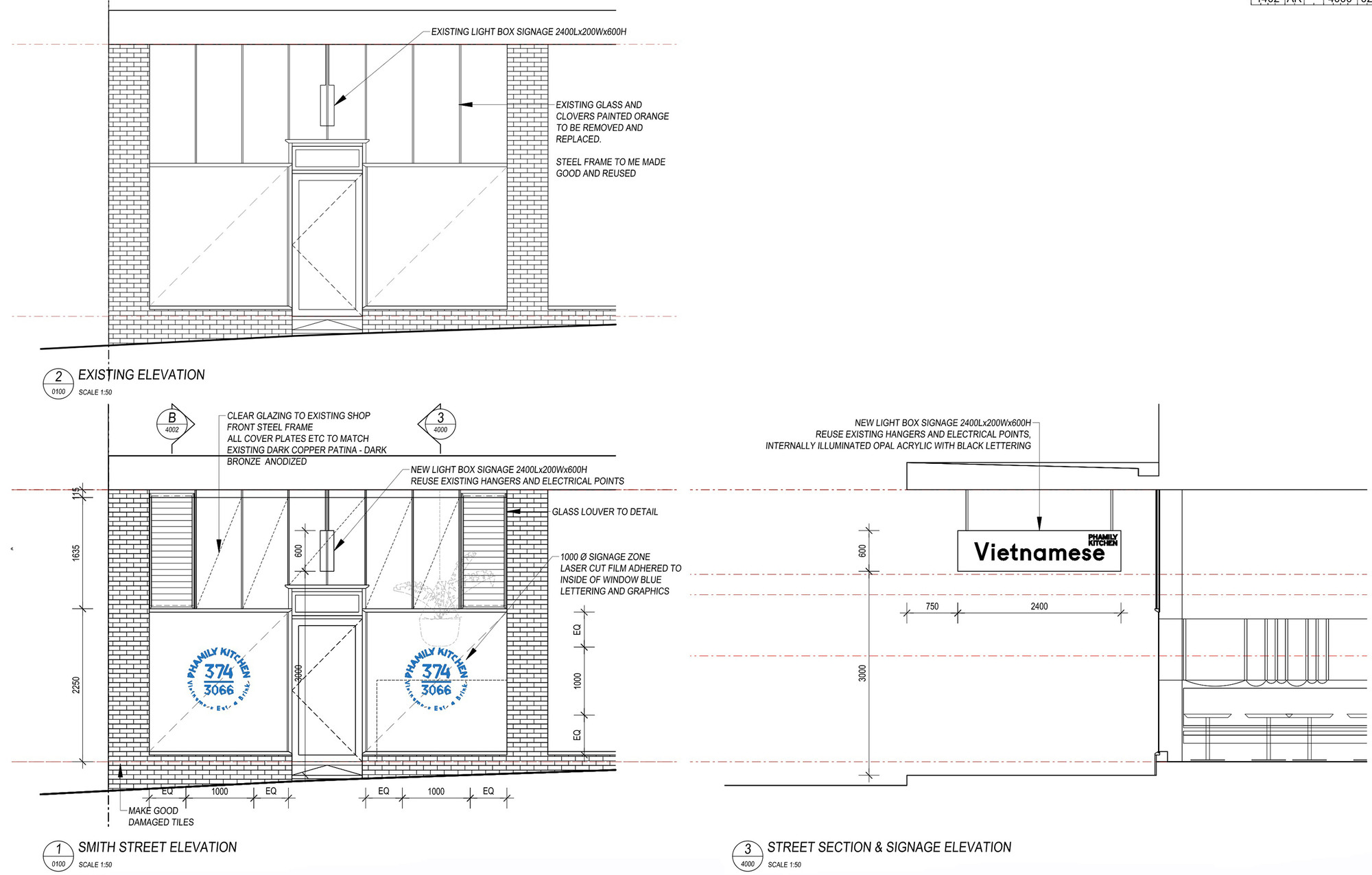
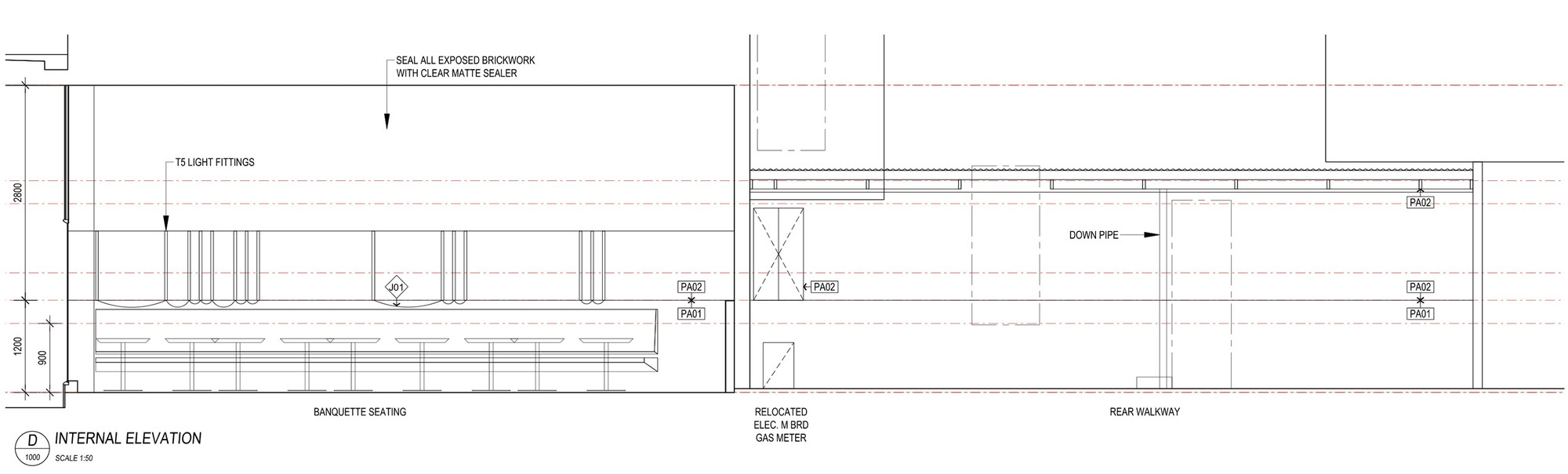
Teknik Çizimler








.google {left:100%;display:inline-block;position:fixed}
оформить займ мгновенно





