Ex Of In House

1 3.367

Doğa ile iç içe, pencere formları alışılmışın dışında Steven Holl Architects‘ den: Ex Of In House

Proje Künyesi;

Mimarlar: Steven Holl Architects

Lokasyon: Rhinebeck,NY, USA

Mimari Yüklenici: Steven Holl

Tasarım Mimarı: Steven Holl ve Dimitra Tsachrelia

Proje Takımı: Rouyu Wei, Michael Haddy, Yuliya Savelyeva

Alan: 85.28685m²

Proje Yılı: 2016

Fotoğraflar: Paul Warchol

Mimarlarlar projeyi, şu sözlerle anlatıyor;

Mevcut klişeler olan ticari pratik ve mimari dile yanıt veren, mekanın ekolojik sıçramasına üç boyutlu enerji kazandırmayı amaçlayan, alanın dilini keşfeden bir proje The Ex of In House. Konut, 2014 yılının haziran ayından beri Steven Holl ekibi taraından araştırılan IN (İçinde) algısı etrafından geliştirildi.

Topografik olarak önemli lokasyonda 28 akrelik arazi üzerine kurulu alan ‘T2 Reserve’ olarak adlandırılmış. 918 m2 lik alana, modernist yaklaşımdaki bu konut kurulmuş.

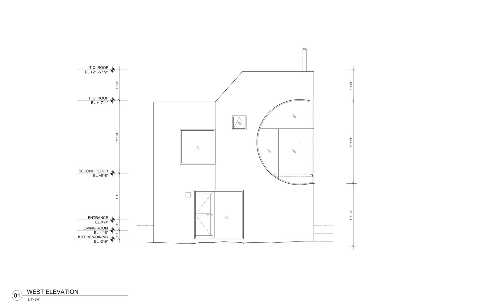
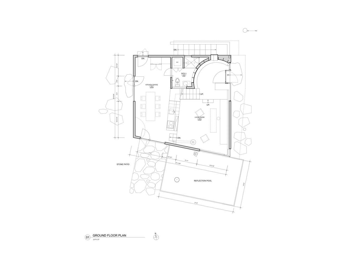
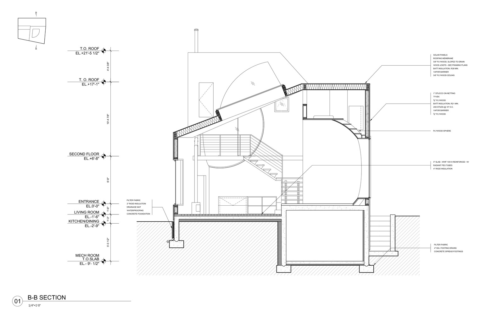
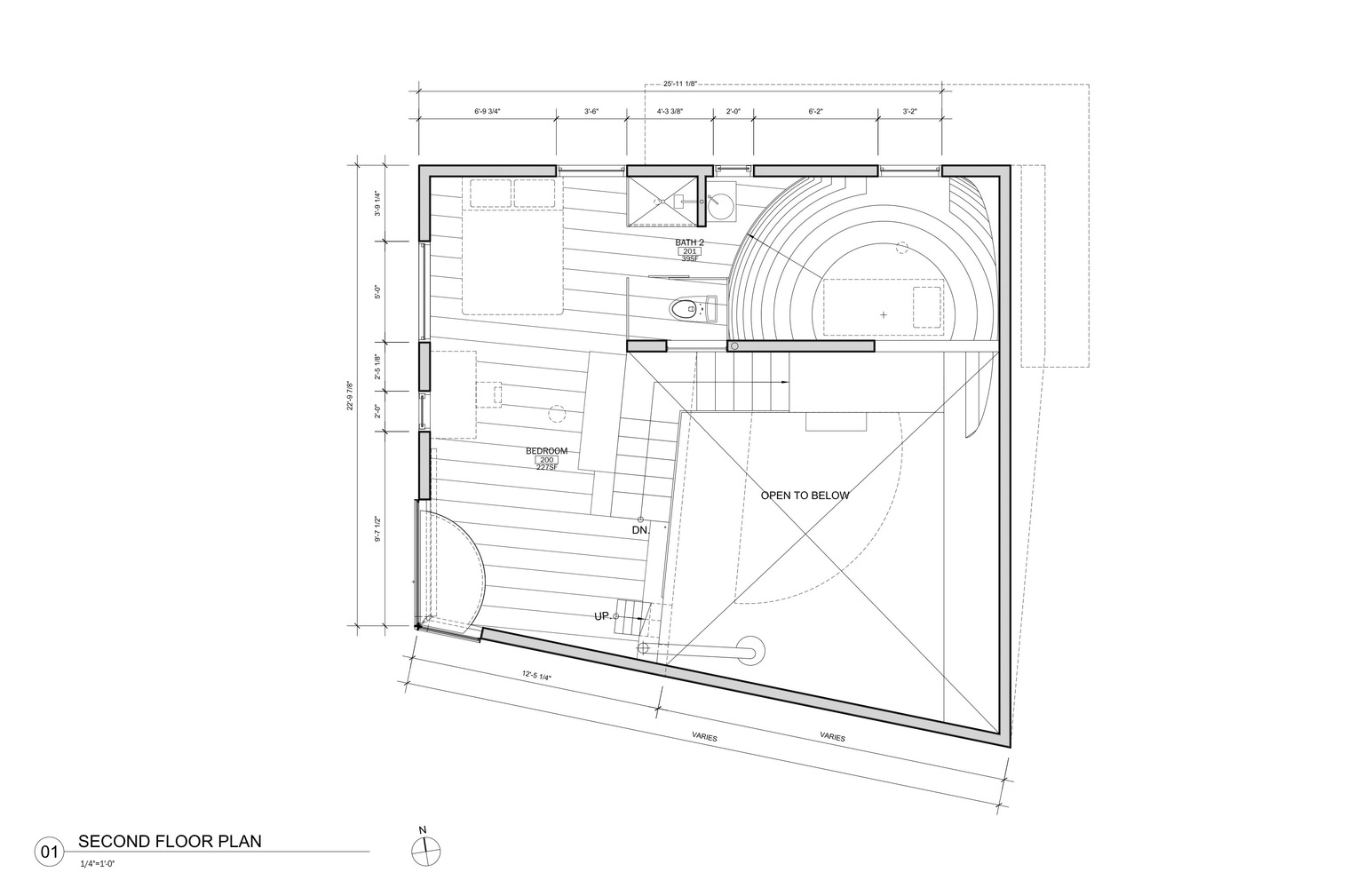
Konutun geometrik formu, kürenin iç mekanda hacimli bir alan ile kesilmesi şeklinde tanımlanmış. Mekana giriş ve iç mekanın tümünde algı yaratması için, aydınlık yüzeyler oluşturulan projede ahşap iç mekandaki hakim malzeme.

Konut, çoğunlukla işlenmemiş malzemeler tarafından inşa edilmiş. Kontraplak duvarlar, katı formdaki ahşapların yontulması gibi özellikler, kapı pencere boşluklarının geniş ve amorf formda olması konutun özellikleri arasında.

Teknik çizimler, maket görselleri;

 

1 Yorum
  1. Özlem İltaş diyor

    Güzel tasarım 🙂

Yorum Bırakın

E-posta hesabınız yayımlanmayacak.