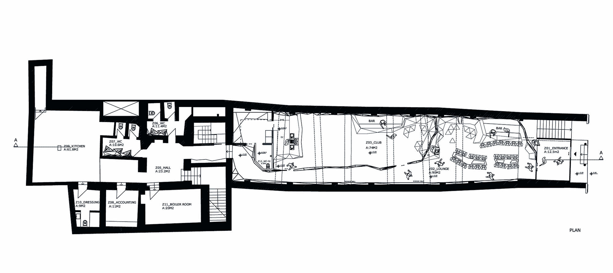
11:11 Restoran – Bar
11:11 İstanbul’ un gece hayatı için yeni bir çekim alanı oluşturmakta… Tepebaşı’nda eski bir yapının zemin katında yer almakta. Proje, tasarlanmış kabuk strüktürün mekanın içine implantasyonu. Blaise Pascal’ın Sayı Üçgeni, kabuk tasarımının omurgasını oluşturdu.









