Koleksiyon Contract & Office Binası İç Mekan Yenileme İşi
Yapının yalnızca bir mağaza değil aynı zamanda mimarları, endüstriyel tasarımcıları, mühendisleri, yöneticileri, satış görevlilerini ve müşterileri aynı çatı altında toplayacak bir mekan olmasını öngören yeni bir program önerildi..
Bu durum, konuklara kendileri tarafından tasarlanan, temsil edilen mobilyalarla çalıştıklarını görebilmeleri için bir fırsat yaratacaktı. Diğer yandan da tasarımcılara kullanıcılarla doğrudan bağlantı kurma, satış personelinden görüş alma ve yeni gelen ürünler hakkındaki bilgilerimizi güncel tutma şansını verecekti.
Birinci Müdahale: Hacimsel
Mekan tasarımı bazı durumlarda “inşa edilen” ve “eklenen”lerden çok “elenen” ve “sakınılan”lar ile ilgili.
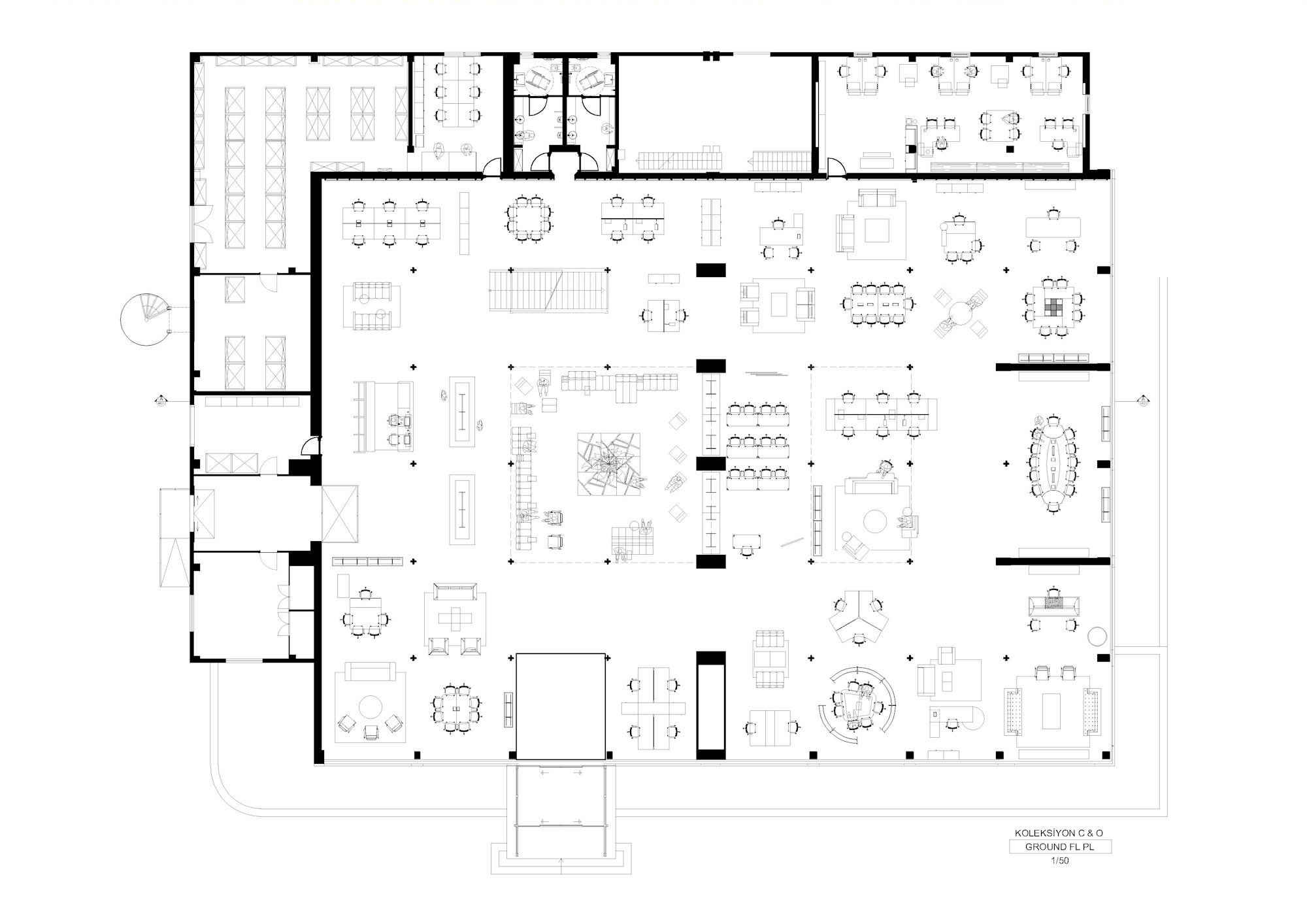
Halihazırdaki bölücü duvarlardan ve farklı yükseklikteki platformlardan arındırıldı, böylece şeffaf ve esnek mekanlar elde edildi. Nadiren kullanılan bir merdivenin iptali sayesinde daha fazla sergi alanı ve dış mekanla daha çok görsel bağlantı sağlandı. Servis asansörü mekana entegre edildi ve ziyaretçilerin kullanımına uygun hale getirildi. Ayrıca girişi ve tuvaletleri herkes tarafından erişilebilecek şekilde düzenlendi.
İkinci Müdahale: Malzemeler
Zemin önceden farklı malzemelerin kombinasyonundan oluşuyordu: parke, MDF, beton, çelik, taş ve halı! Giriş katının tamamını sertleştirilmiş betonla, diğer katları ise laminat parke ile kapladık, bu sayede mekanı görsel anlamda sadeleştirmiş olundu. Çelik kolon ve korkuluklar aslen beyaz renkli idi, bunları da koyu griye boyayarak algısal olarak geri planda kalmalarını sağlandı.
Müşterilerin kendi ofis mekanlarını burada tekrar yaratmaya çalışılmadı. Bunun yerine mobilyaları neredeyse “doğa üstü” bir bağlamda sunmayı, böylece onlara ürünleri mekandan soyutlayarak doğrudan ilişki kurma imkanını vermeyi amaçlandı. Sade -beyaz- bir arka plan yerine beton paneller kullanılarak, mobilyaların ince detayları ile kontrast yaratan endüstriyel, ham (tamamlanmamış) bir fon oluşturuldu.
Üçüncü Müdahale: Yerleşim
Esnek mekanlar tasarımcılara, yöneticilere ve ürünlere organizasyonel yeniliklere göre rahatlıkla yer değiştirebilme imkanını veriyor.
Girişte zengin bir içeriği olan dev bir kütüphanenin yanıbaşında küçük iş görüşmeleri, bekleme, sohbet ve okuma gibi aktiviteler için geleneksel düzende ancak çağdaş bir oturma grubu yer alıyor. Boşluklu depo üniteleri ve yüksek sırtlı kanepeler gibi özel tasarımlı mobilyalar, üst katlarda çalışan personelin mahremiyeti kadar mağaza ile olan ilişkisini de güvenceye alıyor.
En üst katta hareketli tekstil perdelerle çevrelenmiş, değişen ihtiyaçlara cevap verebilecek kapasitede bir konferans alanı ve kendi bahçemizin ürünlerinin de sunulduğu bir kafeterya bulunuyor. Ağır yük tipi kablo tavaları ve ciddi anlamda enerji tasarrufu sağlayan LED spotlarla donatılmış olan mekanın her yeri, çağdaş tasarım ürünü mobilyalar kadar sanat eserleri ve projeler için de sergileme alanı olarak kullanılabiliyor.






