Café Setup
B-Design tarafından tasarlanan Café Setup Kabataş Setüstü’nde Boğaz’a doğru yönlenmiş 40 yıllık bir betonarme binanın zemin katında yer alıyor.
Proje Yeri: Kabataş, İstanbul
Proje Ofisi: B-Design
Proje Tipi: Restoran / Kafe / Bar
Tasarım Ekibi: Barış Başat
Peyzaj Projesi: Tennis Akademi, Ümit Yılmaz
Fotoğraf: Can Dağarslanı
Proje Başlangıç Yılı: 2012
Proje Bitiş Yılı: 2013
İnşaat Başlangıç Yılı: 2013
İnşaat Bitiş Yılı: 2014
Toplam İnşaat Alanı: 170 m²
Bölge özellikle son yıllarda gün içerisinde ağırlıklı olarak ofis olarak kullanılan, gün içerisinde Taksim / Kabataş bağlantı noktasında olması nedeniyle oldukça hareketli ve dinamik bir yapıya sahip.
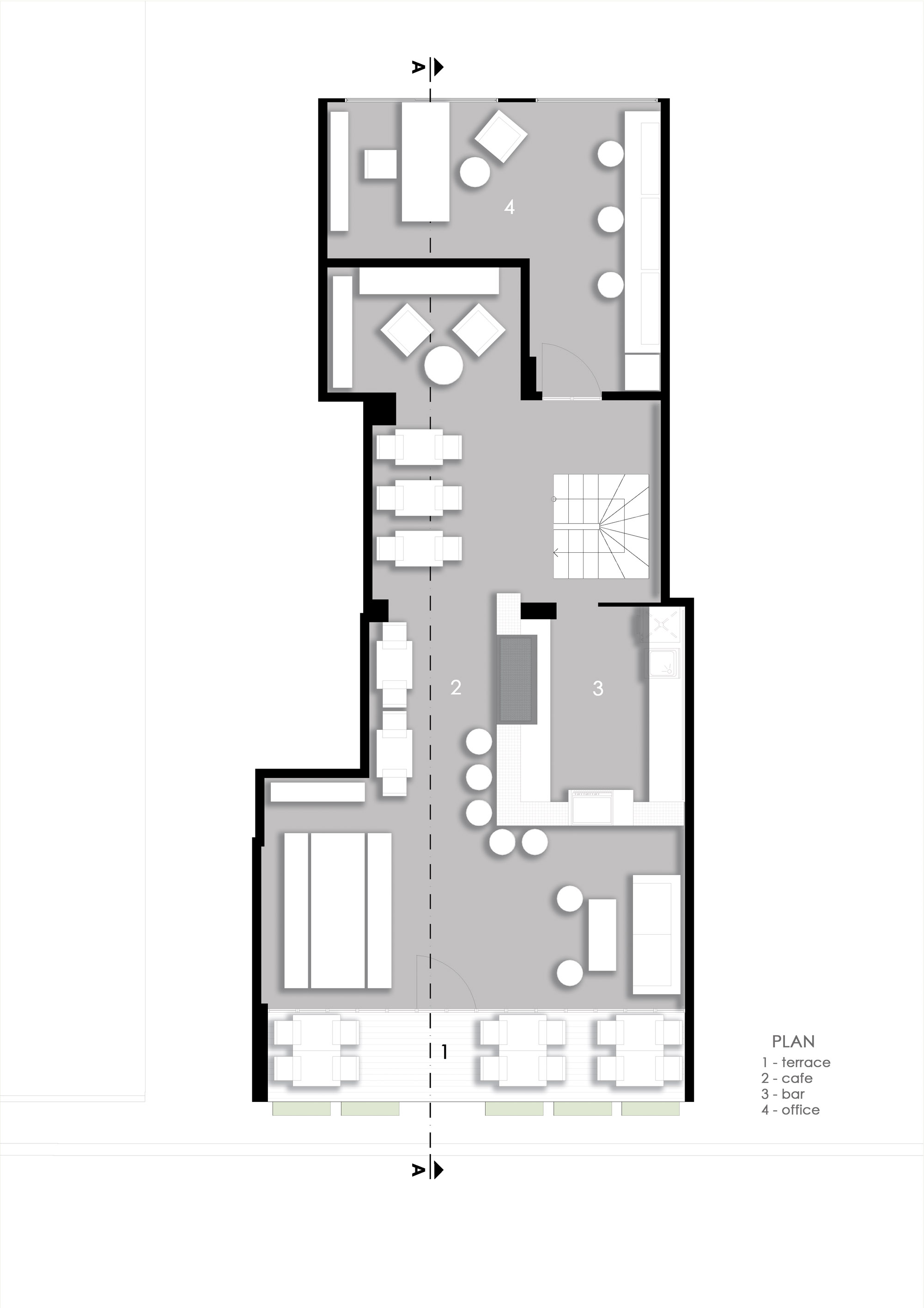
Peyzaj mimarlığı ofisinin işletmecisi aynı zamanda kendi ofisinin de kafe içerisinde yer almasını talep etti ve ofis bölümü de yarı geçirgen kütüphane-duvar sayesinde görsel olarak ana mekan ile ilişkilendirildi. Toplamda 130 m2’lik kafe ve ofis alanı zemin katta yer alıyor.
Ana cephe dış mekanda oturmaya da imkan verecek şekilde 1,5 m geri alındı ve dikey bitkilendirme ile bir “dış bahçe” oluşturuldu. Tamamıyla katlanabilen doğramalar sayesinde tüm iç-dış ilişkisinde bir bütünlük sağlanabiliyor. Ana bar / servis en kullanışsız orta bölümde çözüldü ve 3 tarafı ile servis verebiliyor. 10×10 cm’lik seramiklerle kaplanan bar bütünüyle masif bir servis, sergileme alanı olarak tasarlandı.
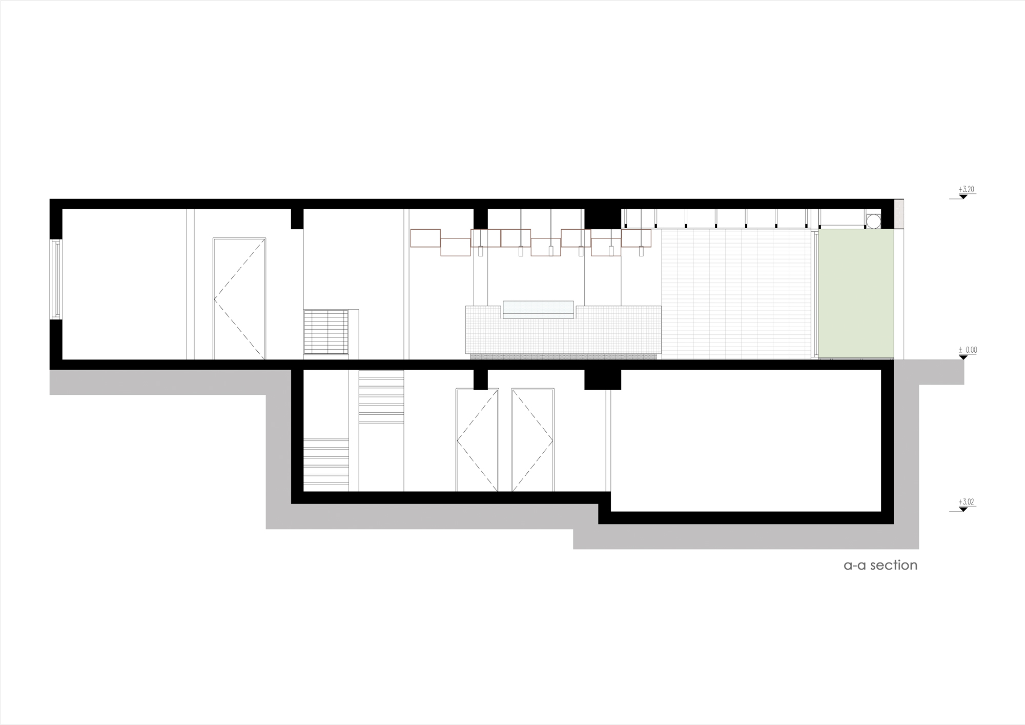
Paslandırılmış demir profiller, döküm şaplı zemin ve masif ahşap kullanımı ile endüstriyel, modern konsept vurgulandı. Ana mutfak, tuvaletler, depolar ve diğer servis alanları bodrum katta çözüldü. Mekan genel aydınlatması ve fotoğraf aydınlatmaları için tüm mekanı dolaşan bir ray sistemi öngörüldü. Bu şekilde zaman içerisinde farklılık gösteren durumlar için bir esneklik yakalandı.









Tebrikler .çok güzel.mimari düşüncenin eseri olan yapı ve mekanlar hemen belli oluyor.