Clinique 312

0 4.776

009.jpg

Proje Yeri: Çankaya, Ankara
Proje Ofisi: İki Mimar
Proje Tipi: Hastane / Poliklinik
Proje Tipi Grubu: Sağlık
Tasarım Ekibi: Berkay Şeşen, Süha Özcan Afacan
İşveren: Clinique 312
Müteahhit: İki Mimar
Fotoğraf: Umut Kebabcı
Proje Başlangıç Yılı: 2012
İnşaat Bitiş Yılı: 2012
Toplam İnşaat Alanı: 220 m²

Mimarlar projeyi anlatıyor:

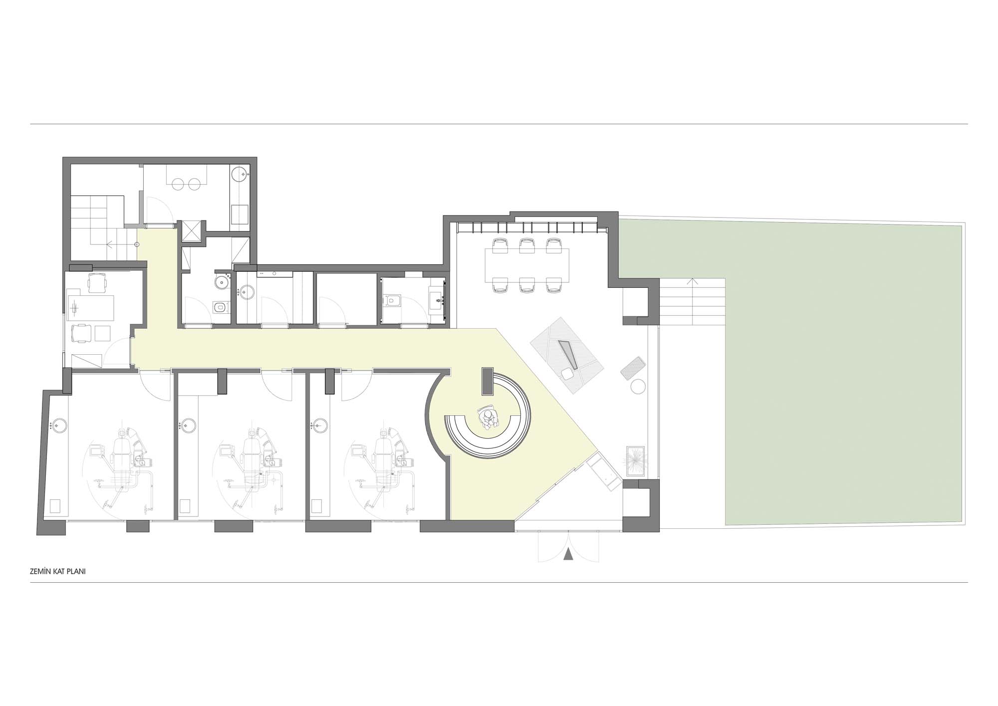
Projenin giriş katında misafir bekleme alanı, karşılama bankosu, üç adet klinik, bir adet panoramik röntgen odası, sterilizasyon ve laboratuvar bölümü, personel için giyinme odası ve WC, mesul müdür odası ve mutfak yer almaktadır. İkinci katta ise üç adet doktor odası konumlandırılmıştır.

002.jpg

Gerekli çalışmalar kapsamında, yaklaşık üç aylık bir dönem içerisinde projelendirme ve uygulama süreci tamamlanmıştır. Proje başlangıcında mevcut fonksiyonundan farklı bir yapıya sahip ve zaman içerisinde tahrip olmuş mekanlar, tüm duvar, zemin ve tavan kaplamalarının kaldırılması ile köklü bir değişime hazırlanmıştır. Tüm söküm işlemlerine paralel olarak elektrik, kuvvetli akım ve mekanik tesisatı da tamamen yenilenmiştir. Mekanların doğal ışıktan mümkün olan en iyi seviyede faydalanabilmesi amacıyla tüm cephelerde maksimum genişlikte açıklıklar kullanılmıştır.

001.jpg

Clinique 312 iç mimari tasarımında, üç farklı hekimin, birbirlerinden farklı karakterlerinin renklerle mekana yansıtıldığı bir kurgu oluşturulmuştur. Diğer bir değişle, üç farklı kimliği temsil eden üç hekimin esin kaynağı olduğu kurumsal kimlikten doğan bir klinik tasarımı ortaya çıkartılmıştır. Sarı, mavi ve pembe renkler hekimlerin karakterine göre, özel olarak belirlenmiştir. Aynı zamanda, proje kapsamında seçilen malzemelerin yalın ve modern çizgiyi temsil eden bir dil birliğine sahip olması ön planda tutulmuştur.

008.jpg

Giriş bölümünde yer alan karşılama bankosu akrilik ve ahşabın bir araya geldiği bir tasarımla tamamen özel olarak üretilmiştir. Misafirlerin bekleme alanında kullanılan mobilyalar Koleksiyon Mobilya ürünleri arasından seçilmiştir. Aydınlatma elemanları ise Bahar Aydınlatma markasına aittir. Zeminlerde epoksi ve parke tercih edilirken klinik bölümü duvarlarında kısmi mucartalı traverten kullanılmıştır. Dikkatleri çeken diğer bir detay olarak, klinik kapıları kurumsal renklerle ve sayılarla, kliniğin adı olan 312’yi temsil edecek şekilde detaylandırılarak, temperli cam üzeri folyo baskı uygulaması ile üretilmiştir.

003.jpg 004.jpg 005.jpg 006.jpg 007.jpg 312-CLINIQUE-GORUNUS-1.jpg 312-CLINIQUE-BIRINCI KAT PLAN.JPG 312-CLINIQUE-ZEMIN KAT PLAN.JPG 312-CLINIQUE-GORUNUS-2.jpg

Yorum Bırakın

E-posta hesabınız yayımlanmayacak.