Dwarf Planet Office Tasarımı

0 2.526
dwarf planet office 1
Proje Yeri: Beyoğlu, İstanbul
Proje Ofisi: NM Mimarlık
Proje Tipi: Ofis
Proje Tipi Grubu: Ticari
Tasarım Ekibi: Nuri Ciğerci, Nevra Düzgören, Nursev Yılmaz, Ayşegül Gültekin, Tülay Daşdemir, Mehmet Çivici
Proje Başlangıç Yılı: 2014
Proje Bitiş Yılı: 2014
İnşaat Başlangıç Yılı: 2014
İnşaat Bitiş Yılı: 2014
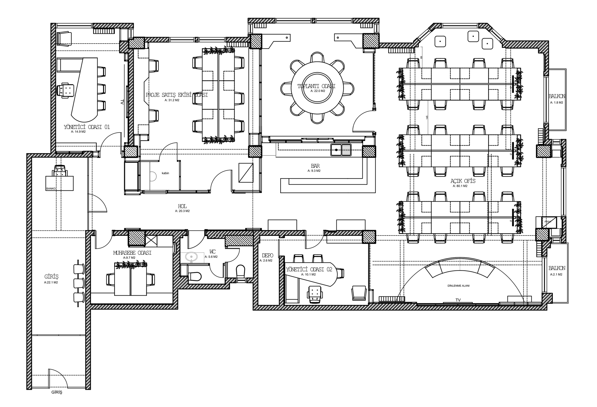
Toplam İnşaat Alanı: 247 m²

 

NM Mimarlık’ın tasarladığı reklam ajansı Dwarf Planet, Beyoğlu’nda Mısır Apartmanı’nda yer alıyor.

NM Mimarlık projesini anlatıyor:

“Dwarf Planet Office, bulunduğu yapının tarihi dokusu, firmanın kurumsal kimliği ve bulundukları sektörün teknolojik unsurları göz önünde bulundurularak tasarlanmış bir reklam ajansı.

Genelinde rustik tarzın modern unsurlar ile harmanlandığı ofisin giriş kısmında ve koridorda, firmanın ismiyle bağlantılı olarak uzay etkisi vermesi amacı ile mat siyah renkler kullanıldı. Bu siyah yüzeylerin üzerine grafiti sanatçıları tarafından uzay boşluğu, samanyolu ve yıldız görselleri çizildi; bu görseller ise tavanlarda bulunan metal asma tavanların arkasına gizlenmiş rgb ledler ile desteklendi. Bu sayede görsel düzenlemesi yönetilebilir bir uzay boşluğu elde edildi.

Girişinden en küçük odasına kadar belli bir tarza sahip olan ofiste yönetici odaları, toplantı ve muhasebe odaları kapalı alanlara alınırken, genel çalışma düzeni açık ofis olarak tercih edildi. Açık ofis ile kesişen odalarda ise bu algının destelenmesi amacı ile cam ve zincirlerden yararlanarak şeffaf bir seperasyon sistemi kullanıldı. Bu sayede 1. derece tarihi eser olan yapının duvarlarına müdahale etmeden dar ve penceresiz olan odalara derinlik duygusu kazandırıldı.

Ofisin bir diğer dikkat çeken bölümü ise, ateş tuğlası duvarlar, döküm radyatörler, tasarım sarkıtlar, sistem masalarda bulunan apple TV’ler, ses izolasyonlu telefon kabini dışında bar bölümü. Gelen ziyaretçilerin ofisin konseptini algılarken beklemesine ve çalışanların dinlenirken sosyalleşmelerine olanak sağlayan bir dinlenme alanı yaratıldı.

Firmanın yenilikçi ve girişimci ruhunun dinamik bir tasarımla desteklenmesinin amaçlandığı bu ofis iki farklı tasarım sektörünün, Mısır Apartmanı gibi bir tarihi dokuda birleşmesi sonucu ortaya çıktı.”

dwarf planet office 2

 

3

3 4

dwarf planet office 5

8

dwarf planet office 7

dwarf planet office 6

dwarf planet office 16

15

dwarf planet office 14

dwarf planet office 13

dwarf planet office 12

dwarf planet office 11

dwarf planet office 9

dwarf planet office 24

dwarf planet office 23

dwarf planet office 22

dwarf planet office 21

 

dwarf planet office 21

dwarf planet office 20

dwarf planet office 19

dwarf planet office 18

dwarf planet office 17

dwarf planet office 25

Yorum Bırakın

E-posta hesabınız yayımlanmayacak.